Skip to content

Plot 382 Pitsford - Mid-terrace

3
2
2

£

1007 Sq.ft

£108,000 (40%)

£371.25

£44.18

Charges will change if the equity share changes, see our shared ownership page for more information

The Pitsford is a 3-bedroom house with accommodation built over three floors.

The entrance hall leads into a dual aspect living room. Off the living room is a handy under stairs storage cupboard and cloakroom. The kitchen/dining room is situated at the rear of the property and is equipped with integrated appliances, including stainless-steel single oven, induction hob, extractor hood, fridge/freezer, and dishwasher, with a door leading to the garden.

The first floor is home to bedrooms 2 and 3, and the family bathroom, which is fitted with contemporary white sanitaryware, Diesse wall tiles and a heated towel radiator.

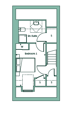
The main bedroom is situated on the second floor and has a fitted wardrobe and en suite shower room. There are a further two storage cupboards on this floor.

Vinyl flooring is fitted throughout downstairs and to the bathroom and en suite, and carpets are fitted to the stairs, landing, and bedrooms.

There is landscaping to the front garden and turf, paved patio, 1.8m closeboard fencing, and an external tap to the rear garden.

This home is sold with two parking spaces. Anticipated build completion: November/December 2025

Tenure: Leasehold

Years remaining on lease: 990 years

Initial ground rent: £0.00
Annual Service charge: £187.72

Service Charge Review Period: April (annually)
Council Tax Band:
C (Please note this an estimated Council Tax Band and it will be confirmed by the local authority on completion of the property).

Predicted energy ratings - Energy Efficiency: (93), Environmental Impact (CO2 rating): A (93)

Images shown are of typical Orbit show homes and are for illustrative purposes only.

The computer-generated images, floor plans, and dimensions are intended for guidance only and may be subject to revision during construction.


Interior design

Hp 2Bed Induction

Kitchen

  • Stylish, contemporary fitted kitchen with a range of wall and base units with soft close doors
  • Laminate worktops 
  • Diesse tiles to splashback
  • Stainless-steel sink with chrome mixer tap
  • Integrated stainless-steel single oven
  • Induction hob
  • Extractor hood
  • Integrated fridge/freezer
  • Integrated dishwasher
CG Poplar 2994 Bathroom 2

Bathroom and en suite

  • Diesse wall tiles
  • Contemporary white sanitaryware
  • Heated towel radiator
Hp 2Bed Sink

Plumbing and electrical

  • Gas fired central heating with combination boiler and thermostatic radiator valves
  • Data point to living room and bedroom 1
  • TV point to living room and bedroom 1
  • Telephone point to living room
  • PIR outside light to front of property
  • Electric Vehicle charging point
  • Pendant lights to living room and bedrooms
  • Downlights to kitchen, utility, hall, landing, and cloakroom
  • Smoke detectors and alarms
  • Carbon monoxide detector and alarm
Hp 2Bed Living 8

Windows, doors and internal

  • PVCu double glazed windows
  • Front door with multipoint locking, spyhole, letterbox, and chain
  • Built in wardrobe to bedroom 1
  • Solid oak handrail to staircase
  • Woodwork in Dulux in pure white satinwood
  • Walls and ceilings in Dulux pure brilliant white 
  • Vinyl flooring to hall, living room, kitchen, utility, cloakroom, bathroom and en-suites 
  • Carpets to stairs, landing, and bedrooms
Hp 2Bed General

General

  • 1.8m close board fencing to rear garden
  • Turf and patio to rear garden
  • Landscaping to front garden
  • External tap