Skip to content

Plot 171 Cranford - Semi-detached

3
1
2

£

913 Sq.ft

£114,000 (40%)

£391.88

£39.24

Charges will change if the equity share changes, see our shared ownership page for more information

The hallway of the Cranford provides access to a good-sized living room at the front of the home, a storage cupboard and access to the kitchen / dining area at the rear, with double doors out to the garden. The kitchen includes a range of wall and base units and integrated appliances. You'll also find a convenient downstairs cloakroom. 

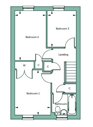
Upstairs, you’ll find a main bedroom with a built-in wardrobe, a second bedroom with storage cupboard, and a third bedroom. There is also a family bathroom with a shower and chrome ladder radiator plus two extra storage cupboards on the landing.

This home includes two parking spaces.

Tenure: Leasehold
Length of Lease (years remaining): 125 years
Initial Ground Rent: £0.00
Annual Service Charge: £238.08
Service Charge Review: April (annually)
Annual Buildings Insurance: £232.84
Shared Ownership (% share being sold): 40%
Council Tax Band: To be confirmed by the local authority on completion of the property.

A local connection criteria applies, please speak with our sales team.

Computer Generated Image shown, plots may may have alternative external finishes, please speak to a Sales Consultant for further details. Internal photography from a similar show home at another Orbit Homes development and does not represent the exact layout and specification of this plot.


Interior design

OH Mill View Ashley May 24 LR (43)

Kitchens

  • Stylish, contemporary fitted kitchen with a range of wall and base units
  • Bosch stainless steel single oven
  • Bosch stainless steel double oven (Stevington, Sandringham, Poringland, Smarden, Rolvenden, Westwell only)
  • Bosch stainless steel 4 burner hob
  • Bosch stainless steel 5 burner hob (Stevington, Sandringham, Poringland, Smarden, Rolvenden, Westwell only)
  • Bosch stainless steel extractor canopy
  • Stainless steel splashback behind hob
  • Stainless steel 1½ bowl sink with chrome mixer tap
  • Stainless steel single bowl sink in utility room (Langford, Sandhurst, Stevington, Poringland, Smarden, Rolvenden, Westwell only)
  • Integrated washing machine (Market Sale homes only)
  • Washer/dryer (Upwell only)
  • Plumbing for dishwasher
  • Integrated Bosch dishwasher (Stevington, Sandringham, Poringland, Smarden, Rolvenden, Westwell only)
  • Integrated Bosch fridge/freezer
OH Mill View Rolvenden May 24 LR (79)

Bathroom, cloakroom and en-suite

  • Roca contemporary white sanitaryware
  • Thermostatically controlled shower over bath, glass shower screen with full-height tiling to bath
  • Thermostatically controlled shower to en suite, glass shower cubicle with full-height tiling (Upwell, Welney, Cardington, Ashley, Langford, Sandhurst, Stevington, Sandringham, Poringland, Smarden, Rolvenden, Westwell only)
  • Chrome ladder radiator
  • Choice of Porcelanosa wall tiles*
  • Tiled splashback to hand basin
Thermostat

Plumbing

  • Gas-fired central heating with combination boiler
  • Gas-fired central heating with system boiler (Langford, Sandhurst, Stevington, Sandringham, Poringland, Smarden, Rolvenden, Westwell only)
  • Thermostatically controlled radiators
OH Mill View Rolvenden May 24 LR (20)

Electrical

  • TV points to living room and bedroom one
  • Telephone points to living room
  • Downlighters to kitchen area, bathroom, en-suite and cloakroom
  • Mains-wired smoke detector and alarm
  • Carbon monoxide detector and alarm
  • PIR outside light to front
OH Mill View Rolvenden May 24 LR (67)

Windows and doors

  • PVCu double glazed lockable windows and patio doors
  • Front door with multi-point locking, deadbolt and chrome furniture
OH Mill View Rolvenden May 24 LR (54)

Internal

  • Walls and ceilings in matt white emulsion
  • Woodwork in white satin
  • Doors in white satin
  • Built-in wardrobe to bedroom one
  • Oak handrail to staircase
OH Mill View Rolvenden May 24 LR (83)

General

  • 10 year NHBC warranty
  • Landscaping to front garden where applicable
  • Turf and patio to rear garden
  • 1.8m closeboard fence to rear gardens
  • Outside tap
  • Power and light to garages within curtilage of property

* Individual choices are subject to stage of construction. Orbit reserve the right to alter specifications without prior notice. Please ask your Sales Consultant for current information when reserving your new home. Information correct at time of going to print. Images shown are from other Orbit Show Homes.