Skip to content

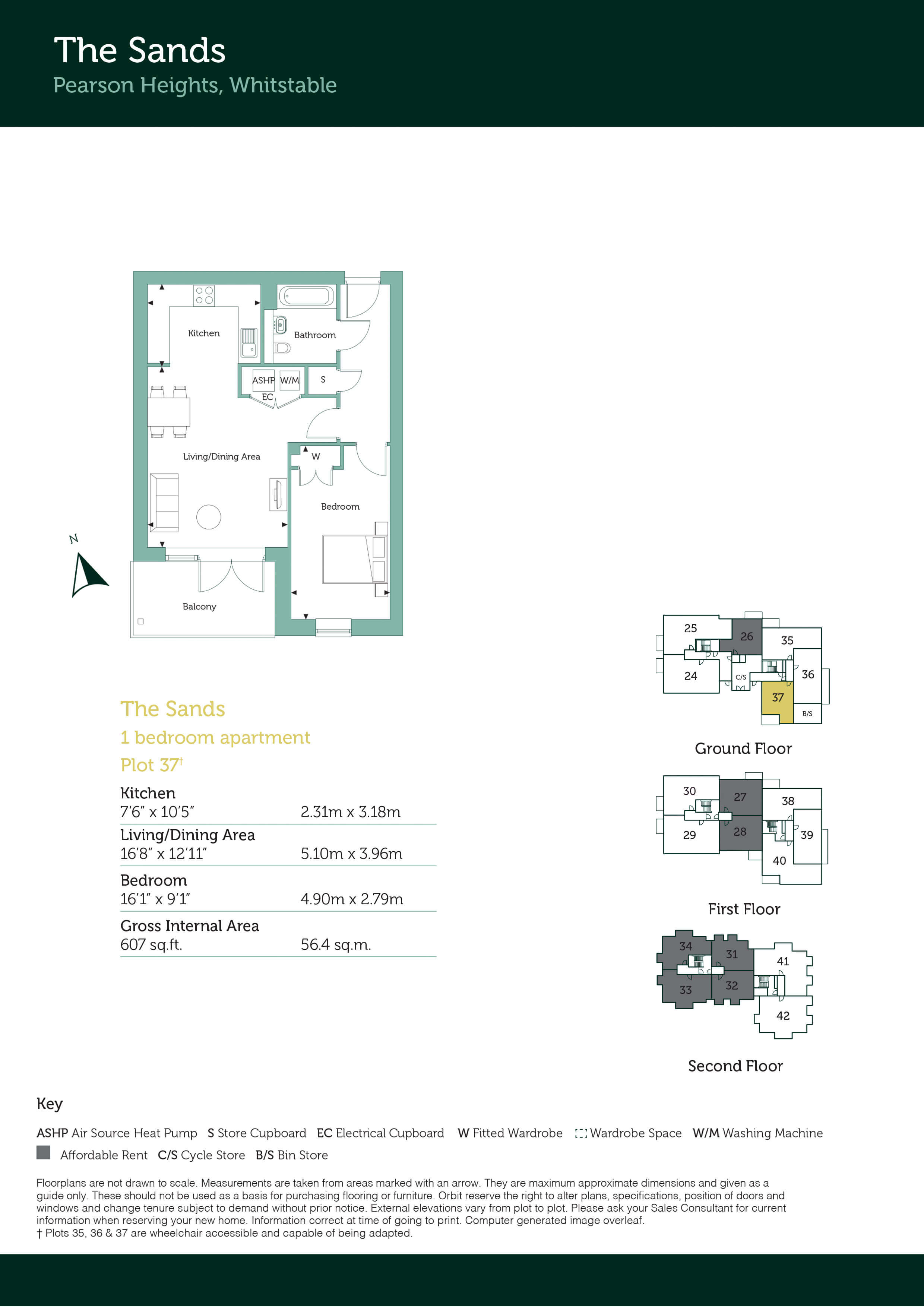
Plot 37 - The Sands - Ground floor

1
1
1

607 Sq.ft


Plot 37 is an elegant and well equipped one-bedroom apartment, located in the sought-after town of Whitstable. This is the only one-bed available at Pearson Heights, and is sold with an allocated parking space with shared EV charging point and access to areas of open green space next to the building.

An open-plan layout seamlessly blends the kitchen, dining and living area together with natural light filling the room. From the living area, enjoy double doors out to the private south-westerly facing balcony which provides a tranquil spot to enjoy the late summer evenings. The kitchen also comes fully fitted with a range of wall & base units, tiled splashback, single oven, induction hob, integrated fridge/freezer and dishwasher.

The generously sized bedroom includes a fitted wardrobe, providing ample storage space and a clutter-free environment. Completing this home is the main bathroom and storage cupboard off the hallway, as well as an additional large cupboard next to the kitchen, housing a washer/dryer and service equipment.

Our apartments at Pearson Heights offer a modern, environmentally friendly specification throughout. This includes an air source heat pump which provides underfloor heating to the home, carpet/Amtico flooring to all rooms and lighting throughout. To see a full list of the specification, please view our host brochure or speak with one of our sales consultants.

Anticipated build completion Sept/Oct 2025.

Predicted Energy Assessment*:
Energy Efficiency Rating:76 (C)
Environmental Impact (CO2) Rating:95 (A)

---
Tenure: Leasehold
Length of lease: 990 years
Estimated annual service charge: £1,896.00
Service charge review period: April (annually)
Estimated council tax band: TBC - Council Tax Band will be confirmed by the local authority on completion of the property
---

Please note that whilst every effort is made to publish interior images as similar to the home as possible, these images are not specific to the development and are selected from a library of show homes across our Orbit Homes developments. This means that the images shown do not represent the specification included within this specific plot and variances will apply. These images are used for illustrative purposes only, and selected to give the closest representation available of the layout. For site specific layout and specification, please refer to technical drawings.

*The energy performance has been assessed using the Government approved SAP 10 methodology and is rated in terms of the energy use per square meter of floor area; the energy efficiency is based on fuel costs and the environmental impact is based on carbon dioxide (CO2) emissions. These are predicted ratings which might not represent the final rating EPC rating upon completion of the property.


Interior design

Kitchen

Kitchen

  • Symphony range of wall & base units
  • Symphony 22mm square edge laminate worktops
  • Porcelain tiled splash back
  • Black and stainless steel single oven
  • Induction hob
  • Recirculation charcoal filter fan
  • Microwave (houses)
  • Sink in graphite grey with chrome mixer tap
  • Integrated fridge/freezer
  • Integrated dishwasher
Bathroom

Bathroom, Cloakroom & En Suite

  • 1.2m high porcelain wall tiles to walls with sanitaryware
  • Full height porcelain wall tiles to bath & shower cubicles
  • Back-to-wall WC with concealed cistern & soft-close lid
  • Wall-mounted basin (pedestal to cloakroom)
  • Steel bath with laminate panel (with thermostatic shower where there's no separate shower)
  • Separate thermostatically controlled shower cubicle with glass sliding screen (2+ beds)
  • Lockable mirror-fronted vanity cabinet with shaver socket
E & M

Electrical & Plumbing

  • Data points to living room & up to 3 bedrooms
  • Media plate to living room
  • Fibre network wiring to property
  • Mains wired smoke detector with battery back-up
  • Photovoltaic roof panels (houses)
  • Intratone fob & video door entry (apartments)
  • LED PIR lighting to main entrances, bin & cycle stores (apartments)
  • Downlights and pendant lighting throughout
  • PIR light to front and rear of property (houses)
  • PIR lighting to balcony* (apartments)
  • EV charging point*
  • Air Source Heat Pump with external fan unit, providing underfloor heating to ground floor, radiators/towel radiators to upper floors & hot water cylinder (houses)
  • Exhaust Air Source Heat Pump which utilises warm air from wet-rooms to provide underfloor heating & hot water to cylinder (apartments)
  • Mechanical Ventilation Heat Recovery system which utilises warm air from wet-rooms to heat incoming fresh air (houses)
W & D

Windows and Doors

  • Aluminium double or triple glazed windows with thermal breaks & heat resistant glass*
  • Trickle night vents (apartments)
  • Multipoint locking external doors with chrome ironmongery
Internal

Internal

  • Woodwork in white satinwood finish
  • Ceilings & walls in matt white emulsion
  • Amtico flooring to hall, receptions, kitchen, WC, bathroom and en suite
  • Carpet to stairs, landing and bedrooms
  • Fitted wardrobe to bedroom 1
  • Washer/dryer located in storage cupboard (apartments)
General

General

  • Landscaping to front gardens
  • Turf to rear gardens with access path and patio
  • Water butts to rear garden (houses)
  • Bike shed to rear garden (houses)
  • Bike space to cycle store (apartments)
  • 1.8m closeboard fence/2m acoustic fence to rear garden (refer to hard landscaping)
  • 12 year NHBC warranty

*Please speak to one of our sales consultants for plot specific details