Welcome to Orbit Homes
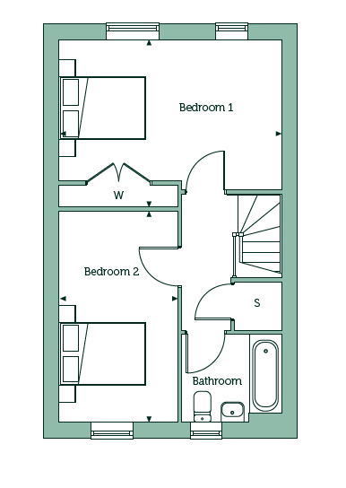
Floor plans

Gross Internal Area - 859 sq ft (79.8 sq m)
Bedroom 1 - 15’8” x 11’9” (4.78m x 3.59m)
Bedroom 2 - 8’3” x 14’10” (2.54m x 4.52m)
The computer generated images, floor plans, specification, dimensions and configurations are included for guidance only and may be subject to revision during construction. Please refer to current drawings and specification with a Sales Consultant before exchanging contracts.
Features
Details will be added soon.